
Miniature Bearings Australia
SHLD240-050-SKT-C - Datasheet
Brighton Best
Category Information
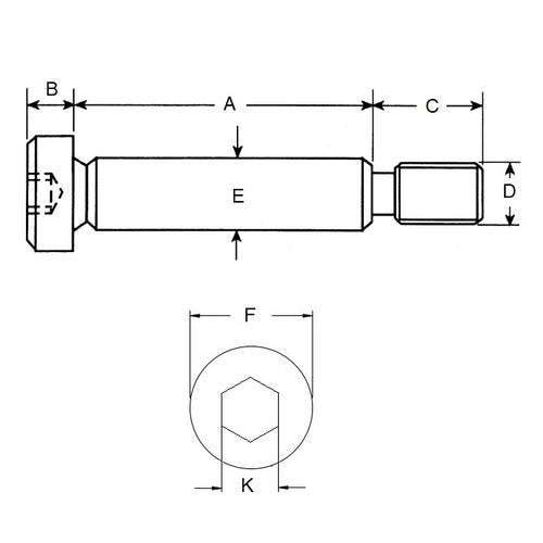
Screws - Shoulder - Socket Head - Carbon SteelCarbon Steel Socket Head Shoulder Screws. Hardened
- Also known as Pivot Pin, Fulcrum Screw, Stripper Bolt, Stepped Screw and Shoulder Socket Cap Screw
Product Data
- Shoulder Diameter (E)
:
24.000
mm
- 0.010 / - 0.040
(Equiv. 0.945 in.) - Shoulder Length (A)
50.000
mm
(Equiv. 1.969 in.) - Thread (D) M20
- Allen Key Size 12.00 mm
- Material Carbon Steel - Hardened
Product Compliance and Data
Additional Resources
- Screws & Nuts Catalogue
- Shoulder Screws Catalogue
- Socket Set (Grub) Screws Catalogue
- Thumb Screws & Thumb Nuts Catalogue
- Thread Size Chart - Combined Imperial & Metric
Cross References
- Brighton Best 537320
- 92981A705


